Plastik ve Sentetik Endüstrisinde Seviye Ölçümü Sürdürülebilir Verimlilik

K Proses: Prosesiniz Güvence Altında, Geleceğiniz Emin Ellerde.
Plastik ve sentetik malzeme sektörü, bir yandan yenilikçi gelişmelerle ilerlerken, diğer yandan sürdürülebilirlik, maliyet optimizasyonu ve operasyonel verimlilik gibi önemli zorluklarla karşı karşıya kalmaktadır. Günlük yaşamın her köşesinde yer bulan polimerlerin üretiminde, kaynak israfını en aza indiren, enerji verimliliğini artıran ve çevre dostu işleyişi destekleyen ileri teknoloji çözümleri kritik bir rol oynamaktadır. Bu noktada, K Proses (UWT Türkiye) olarak, global partnerimiz UWT Group’un geliştirdiği ihtiyaçlara özel tasarlanmış seviye ölçüm çözümleriyle plastik üreticilerine destek oluyor ve bu önemli mücadelede başarıya ulaşmalarını kolaylaştırıyoruz.
Plastik endüstrisinde doğru seviye kontrolü, yalnızca bir "doluluk oranı" bilgisi sağlamaktan ibaret değildir; aynı zamanda tüm tedarik zincirinin sorunsuz işleyişi ve üretim kalitesinin teminatıdır. Gerek devasa hammadde silolarında gerekse üretim tesislerindeki hassas hazırlama ünitelerinde, ileri teknolojiyle yapılan seviye ölçümü şu avantajları sunar:
• Üretim Kesintilerinin Engellenmesi: Hammadde azaldığında ekstrüderlerin kuru çalışması, vidalı sistem ve toplam sistemde yüksek maliyetli mekanik arızalara ve uzun süreli duraklamalara sebep olur.
• Malzeme Akışının İyileştirilmesi: Stok yönetiminde elde edilen anlık veriler, "tam zamanında üretim" (JIT) anlayışını destekleyerek taşıma ve depolama giderlerini azaltır.
• Sürekli Ürün Kalitesi: Karıştırma, ölçme ve kurutma aşamalarında doğru hammadde oranlarının kullanılması, son ürünün dayanıklılık ve transparanlık standartlarına uyumunu sağlar.
K Proses ve UWT: Güvenilirlik, Esneklik ve İnovasyon
Plastik hammadde biçimleri; tozlar, mikronize granüller ya da pul (flakes) olarak bulunabilir ve fiziksel özellikleri açısından oldukça farklılık gösterir. K Proses bu değişken özelliklere mükemmel bir uyum gösterir ve çözümler sunar.
Tak ve Çalıştır (Plug & Play) Özelliği;
Günümüzün üretim hatlarında her zaman değerlidir. Kurulum adımlarını basit hale getiriyoruz. UWT sensörleri kolay konfigürasyonlar ve doğal kurulumla gelir. Kalibrasyona gerek duymadan hemen hazırdır.
Plastik tozları, statik elektrikle birleştiğinde sensör probuna hızla yapışma eğilimindedir. Ancak, burada devreye giren patentli Active Shield (Aktif Kalkan) teknolojimiz, bu malzeme birikimini elektriksel olarak tolere edebiliyor. Böylece cihazımız, probun üzerindeki kirliliği değil, tankın içindeki gerçek malzeme seviyesini algılayabiliyor.
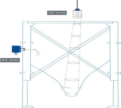
Sentetik sanayide her uygulama klasik bir çelik silo değildir. Özellikle tekstil (kumaş) silolarında seviye ölçümü yapmak, belirlenmiş bir süreç bağlantısı olmadığı için mühendislik becerisi gerektirmektedir.
Esnek kumaşların depolandığı tesislerde, sensörlerin kumaşın hareketine adapte olması önemlidir:
• Rotonivo® RN 3001: Toz geçirmeyen yapısı ve kompakt tasarımı sayesinde, tekstil silolarında güvenilir bir "talep algılama cihazı" olarak kullanılır. Kanatlı yapısı, kumaşın esnemesinden etkilenmeksizin en hassas anahtarlamayı gerçekleştirir.
• NivoRadar® NR 4100: 80 GHz radar teknolojisi, tekstil kumaşını geçerek (temassız) malzeme seviyesini ölçebilir. Bu, kumaşın fiziksel olarak delinmesine gerek kalmadan dışarıdan dijital stok yönetimi imkanı sağlar.
IO-Link ile Akıllı Bakım ve Veri Yönetimi;
Endüstri 4.0'ın plastik fabrikalarında en dikkat çekici uygulamalarından biri, IO-Link teknolojisinin kullanımıdır. K Proses (UWT Türkiye) olarak, en yeni nesil sensörlerimizi bu çağdaş iletişim protokolü ile donatmış bulunmaktayız.
IO-Link Plastik Üreticisine Ne Faydalar Sağlar?
· Hızlı Parametrelendirme: Ekstrüder hattında kullanılan hammaddenin (örneğin, PP'den PVC'ye geçiş) değişmesi durumunda, sensör ayarları merkezi sistem üzerinden birkaç saniye içerisinde kolayca güncellenir.
· Kestirimci Bakım: Sensörlerin kirlilik durumu ve çalışma döngüsü dijital olarak takip edilebilir. Bu özellik, arıza gerçekleşmeden önce önlem alınmasını sağlayarak plansız duruş sürelerinde %30'a varan azalmalar sunar.
· Şeffaf Veri Yönetimi: Cihazın genel durumu ve ölçümlerin kalitesi ile ilgili anlık teşhis raporlarına ulaşmak mümkündür.
Geri Dönüşüm ve Döngüsel Ekonomi
Plastik endüstrisinde geri dönüşüm, süreçlerin merkezinde yer alır. Kırma makineleri, yıkama hatları ve granül üretim sistemlerinden oluşan tesisler; sensörler açısından en zorlu çalışma ortamlarını yaratır.
• Çapak (Flake) Tespiti: Geri dönüştürülen plastik çapakları genellikle düzensiz formdadır ve oldukça düşük yoğunluğa sahiptir. Rotonivo® serisinin ayarlanabilir hassasiyeti, bu hafif ve zorlu malzemeleri bile güvenilir biçimde algılar.
• Aşınmaya Karşı Dayanım: Geri dönüşüm süreçlerinde işlenen malzeme çoğu zaman sert ve aşındırıcı yapıdadır. Güçlendirilmiş prob tasarımına sahip sensörlerimiz, bu yoğun mekanik yük altında bile ölçüm doğruluğunu korur.
Gıda ve İlaç Sektörü için Plastik Ambalaj Hijyen standartları;
Plastik ambalaj üretimi gibi hassas süreçlerde hijyen standartları sadece bir tercih değil, kritik bir gerekliliktir. K Proses olarak sunduğumuz paslanmaz çelik gövdeli ve hijyenik bağlantılı sensörler:
Malzeme saflığını korur.
Pürüzsüz yüzeye sahiptir ve bakteri oluşmaz.
CIP (Yerinde Temizlik) süreçlerine uygundur.
Success Story;
K Proses’in mühendislik yetkinliği, küresel çapta gerçekleştirilen vaka analizleriyle kanıtlanmıştır. Bir sentetik işleme tesisinde; 10 ayrı bölgede bulunan 50 adet silo grubunun anlık takibi projesinde şu çıktılar alınmıştır:
Uygulanan Teknolojiler:
· NivoTec® NT 3500: Tüm dataların merkezi bir noktada, web tabanlı platform üzerinden görselleştirilmesi.
· NivoBob® NB 3100: Elektromekanik ölçüm metodu ile tozlu ortamlardan bağımsız, milimetrik ve kesintisiz seviye tespiti.
· Rotonivo® RN 3002: "Silo Dolu" uyarısını kesinleştiren güvenli emniyet sensörü.
Neden K Proses (UWT Türkiye) Ürünlerini Tercih Etmelisiniz?
Plastik ve sentetik sanayisinde K Proses’i seçmek stratejik bir tercihtir:
Malzeme Uzmanlığı: Granül, toz veya pul formundaki tüm polimerler için en ideal fiziksel ölçüm metodlarını sunuyoruz.
Hızlı Entegrasyon: Mevcut otomasyon altyapılarınızla (PLC, SCADA, Cloud) uyumluluk.
Bakım Gerektirmeyen Yapı: Yüksek neme ve statik elektriklenmeye karşı dayanıklı, uzun ömürlü Alman mühendislik standartları.
Sürdürülebilirlik: Hammadde kaybını ortadan kaldırarak karbon ayak izinizi minimize ediyoruz.
Sonuç: Proseslerinizi Geliştirin
Sentetik endüstrisinde rekabet gücünü korumak, ancak dijitalleşen dünyanın hızını yakalamakla mümkündür. K Proses (UWT Türkiye) olarak, ham madde girişinden son ambalaj aşamasına kadar tüm süreçlerinizde güvenilir çözüm ortağınız olmaya hazırız.
"LEVEL. UP TO THE MAX." felsefemizle, tesisinizdeki ölçüm belirsizliklerine son veriyor ve operasyonel verimliliğinizi en üst seviyeye çıkarıyoruz.
Ücretsiz Saha Analizi ve Teklif İçin: Tesisinizde bulunan kireç tozu, çimento, alçı gibi toz malzemelerin depolandığı bunkerler için en uygun sensör konfigürasyonunu birlikte belirleyebiliriz. Teknik ekiplerimizden destek almak ve ürün kataloglarımızı incelemek için web sitemiz üzerinden bizimle temasa geçebilirsiniz.
Netice: Hammadde tedarik süreçlerinde %20 maliyet avantajı ve "beklenmedik sipariş" baskısının tamamen bertaraf edilmesi.



